Contact Agent

Contact GOC Estate Agents

Contact GOC Estate Agents

4 Bed Detached House

15 Edenvale Meadows

Dunmurry, BT17 0EG

offers over £495,000
  • Status Sale Agreed
  • Property Type Detached
  • Bedrooms 4
  • Receptions 3
  • Heating OFCH
  • EPC Rating D55 / D64 -
  • Stamp Duty
    Higher amount applies when purchasing as buy to let or as an additional property
    £14,750 / £39,500*
  • Typical Mortgage
    Click price to use our mortgage calculator
EPC Rating

Key Features & Description

Substantial Family Detached Home
Four Bedrooms, Master with En-Suite and Private Balcony
Three Reception Rooms
Integral Garage
Utility Room
Versatile Accomodation on Both Floors
Oil Fired Central Heating and Double Glazed Windows
Spacious South Facing Gardens to Rear
Description
A superb detached family home set within the tranquil Edenvale Meadows just off the Upper Dunmurry Lane. Positioned minutes away from Dunmurry Village, Dunmurry train station and easily commutable to Belfast and Lisburn.
Accommodation is bright and spacious throughout, offering three reception rooms, kitchen, utility room and downstairs W/C. Upstairs, a master bedroom with balcony and en-suite, three double bedrooms, two with adjoining storage rooms and a family bathroom. The property is completed by a vast, South Facing garden in lawn to rear, integral garage and generous parking to front with tarmac driveway.
Early viewing is highly recommended.

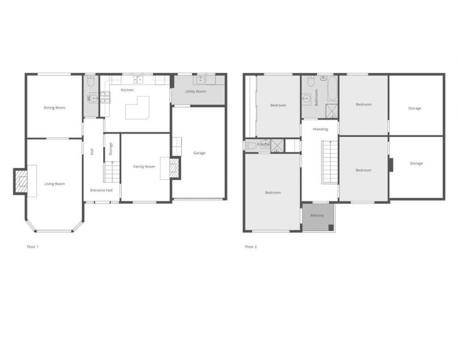
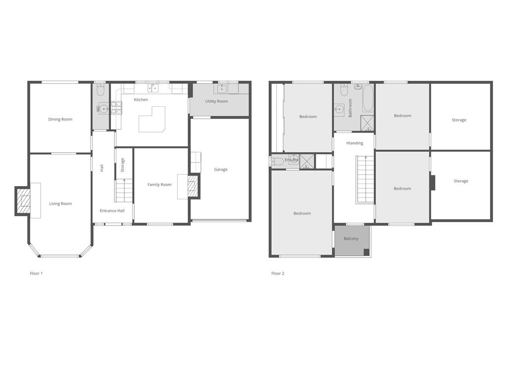
Rooms

ENTRANCE HALL: Accessed via enclosed porch and wooden front door. Wooden flooring.
LIVING ROOM: 19' 11" X 11' 6" (6.07m X 3.51m) Bay window with carpeted flooring, mahogany solid wood doors, solid mahogany fireplace with marble hearth and gas fire, solid mahogany over mantel with mirror.
DINING ROOM: 13' 1" X 11' 6" (3.99m X 3.51m) Accessed via solid wood mahogany double doors, carpeted flooring and French doors to patio.
FAMILY ROOM: 14' 2" X 10' 2" (4.32m X 3.10m) Open fire with wooden mahogany mantel piece, marble hearth and carpeted flooring.
KITCHEN: 14' 8" X 11' 11" (4.47m X 3.63m) Range of high and low level units, laminate worksurfaces, splashback tiling, stainless steel sink and drainer, extractor fan and tiled flooring.
UTILITY ROOM: 11' 3" X 6' 2" (3.43m X 1.88m) Low level units with laminate work-surfaces, stainless steel sink and drainer, plumbed for washing machine, tiled flooring.
LANDING: Carpeted flooring.
BEDROOM (1): 16' 0" X 11' 6" (4.88m X 3.51m) Carpeted flooring.
ENSUITE SHOWER ROOM: Three piece suite with Aqualisa thermostatic shower with sliding doors, wash hand basin and W/C. Fully tiled walls and flooring.
BALCONY
BEDROOM (2): 13' 1" X 9' 0" (3.99m X 2.74m) Carpeted flooring with built-in mirror wardrobes.
BEDROOM (3): 13' 7" X 10' 2" (4.14m X 3.10m) Carpeted flooring.
Storage 12' 10" X 13' 3" (3.91m X 4.04m) Carpeted flooring.
BEDROOM (4): 12' 7" X 10' 2" (3.84m X 3.10m) Carpeted flooring.
Storage 12' 7" X 11' 3" (3.84m X 3.43m) Carpeted flooring.
BATHROOM: Five piece suite including shower with Aqualisa thermostatic shower and panel bath. Fully tiled walls and floors.
Partially floored, accessed via slingsby ladder.
GARAGE: 19' 1" X 11' 1" (5.82m X 3.38m) Garolla electric roller garage door, light and power. Driveway to the front, patio, decking and lawns beyond. Enclosed with fencing.

Broadband Speed Availability

Ultrafast

Potential Speeds for 15 Edenvale Meadows

Max Download
1800
Mbps
Max Upload
220
Mbps
The speeds indicated represent the maximum estimated fixed-line speeds as predicted by Ofcom. Please note that these are estimates, and actual service availability and speeds may differ.

Property Location

Show Map

Mortgage Calculator

Disclaimer: The following calculations act as a guide only, and are based on a typical repayment mortgage model. Financial decisions should not be made based on these calculations and accuracy is not guaranteed. Always seek professional advice before making any financial decisions.

Directions

Turn off the Green on to Edenvale Park, turn left on to Edenvale Park then left again to Edenvale Meadows and the house is on your left.

Contact Agent

Contact GOC Estate Agents

Contact GOC Estate Agents

Request More Information
Requesting Info about...
15 Edenvale Meadows, Dunmurry, BT17 0EG 15 Edenvale Meadows, Dunmurry, BT17 0EG

By registering your interest, you acknowledge our Privacy Policy